3275 Florida Avenue, INVERNESS, FL 34450
Property Photos
Would you like to sell your home before you purchase this one?
Priced at Only: $315,000
For more Information Call:
Address: 3275 Florida Avenue, INVERNESS, FL 34450
Property Location and Similar Properties
- MLS#: OM715371 ( Commercial Sale )
- Street Address: 3275 Florida Avenue
- Viewed: 1
- Price: $315,000
- Price sqft: $164
- Waterfront: No
- Year Built: 1967
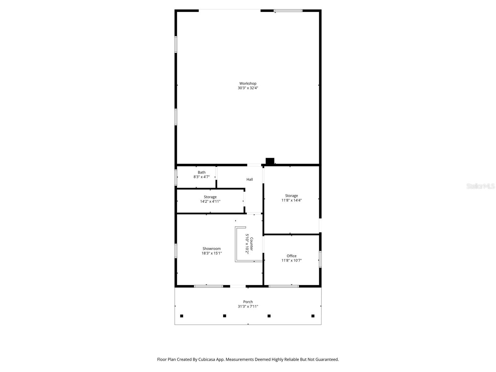
- Bldg sqft: 1920
- Days On Market: 8
- Additional Information
- Geolocation: 28.8145 / -82.3142
- County: CITRUS
- City: INVERNESS
- Zipcode: 34450
- Provided by: CENTURY 21 J.W.MORTON R.E.
- Contact: Elias Kirallah
- 352-726-6668

- DMCA Notice
-
DescriptionMulti Use Investment Opportunity | Citrus County Tampa MSA Fully occupied, income producing commercial asset located along US Highway 41 (Florida Avenue) in the heart of Citrus County within the TampaSt. PetersburgClearwater MSA. The property features a 1,920 SF CBS building situated on 0.34 acres, zoned General Commercial, with 100 feet of frontage and excellent exposure to 13,700 AADT. The building was renovated in 2020 and is leased to a regional tenant, providing stable in place cash flow. The site benefits from strong access and a central location just 2.5 miles south of Downtown Inverness, surrounded by key public and private demand drivers including Publix, Chipotle, Citrus County Clerk of Courts, Property Appraiser, Tax Collector, and Citrus Memorial Hospital. Citrus County is experiencing one of the fastest growth trajectories in Florida, with a current population of approximately 153,600 residents projected to exceed 350,000 by 2030, according to the Countys Land Development Code. As part of the TampaSt. PetersburgClearwater MSAthe 18th largest metropolitan area in the United Statesthe region is rapidly evolving into a major population, service, and employment center, driving sustained demand for retail, medical, and commercial services. The broader market continues to benefit from significant public and private investment. Inverness, Homosassa, and surrounding communities have undergone substantial revitalization, including improvements to Liberty Park, the Depot District, and other catalytic civic assets. Additionally, the $135 million Suncoast Parkway expansion and the planned Phase 3 northern extension, located just north of the subject property, will provide direct one hour access to Tampa International Airport and major employment hubs. These infrastructure investments are expected to materially enhance regional connectivity, tourism activity, and commercial demandpositioning the property along a rapidly strengthening economic corridor.
Payment Calculator
- Principal & Interest -
- Property Tax $
- Home Insurance $
- HOA Fees $
- Monthly -
Features
Building and Construction
- Covered Spaces: 0.00
- Living Area: 1920.00
- Roof: Shingle
Garage and Parking
- Garage Spaces: 0.00
- Open Parking Spaces: 0.00
- Parking Features: Common
Utilities
- Carport Spaces: 0.00
- Cooling: Central Air
- Road Frontage Type: City Street
Finance and Tax Information
- Home Owners Association Fee: 0.00
- Insurance Expense: 0.00
- Net Operating Income: 0.00
- Other Expense: 0.00
- Tax Year: 2025
Other Features
- Country: US
- Legal Description: THAT PT OF THE SE 1/4 OF THE SW 1/4 OF SEC 21 T19S R20E DESC AS FOLL: COM AT PT WHERE W LN OF ACL R/W INT S BDRY OF SEC 21 TH N AL W R/W LN 82.5 FT TO POB TH CONT N AL SD W R/W LN 165 FT TH W TO E R/W LN OF US HWY 41 TH S AL E R/W LN TO PT W OF POB T H E TO POB ---&--- LESS THE FOLL COM AT THE INTERSECTION OF THE S LN OF SEC 21 T19S R20E AND THE W ROW LN OF THE ACL RXR TH N 8D 15M W AL SD ROW LN A DIST OF 202.48 FT TO THE POB TH CONT N 8D 15M W AL SD ROW LN A DIST OF 45.02 FT TO THE SE COR OF LAN DS DESC IN OR BK 253 PG 284 TH W AL THE S LN OF SD LANDS A DIST OF 141.88 FT TO THE SW COR OF SD LANDS SD PT BEING ON THE E ROW LN OF US HWY NO 41 TH S 9D 7M 30S E AL SD ROW LN A DIST OF 60 FT TH N 83D 57M 40S E 139.59 FT TO THE POB
- Area Major: 34450 - Inverness
- Parcel Number: 20E-19S-21-0000-32320
- Zoning Code: GNC
Similar Properties
- Marie McLaughlin
- CENTURY 21 Alliance Realty
- Your Real Estate Resource
- Mobile: 727.858.7569
- marie@c21connects.com

















































