000 Midway Terrace, OCALA, FL 34472
Property Photos
Would you like to sell your home before you purchase this one?
Priced at Only: $445,000
For more Information Call:
Address: 000 Midway Terrace, OCALA, FL 34472
Property Location and Similar Properties
- MLS#: S5133993 ( Commercial Sale )
- Street Address: 000 Midway Terrace
- Viewed: 5
- Price: $445,000
- Price sqft: $24
- Waterfront: No
- Year Built: 2026
- Bldg sqft: 18520
- Days On Market: 127
- Additional Information
- Geolocation: 29.1226 / -82.0281
- County: MARION
- City: OCALA
- Zipcode: 34472
- Subdivision: Silver Spgs Shores Un 07
- Provided by: KISMET 2 REALTY INC.
- Contact: Oscar Donado
- 786-489-7713

- DMCA Notice
-
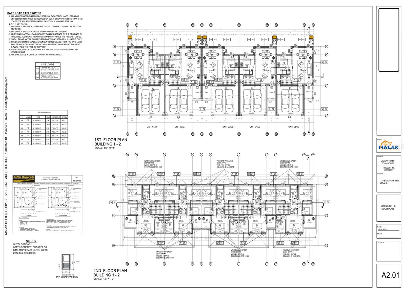
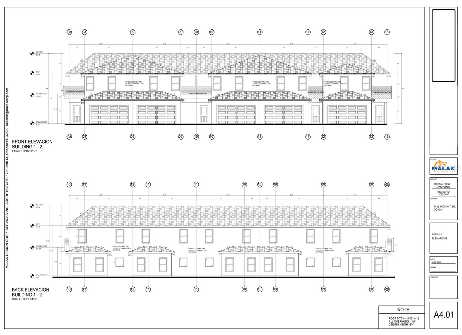
DescriptionPre Construction. To be built. Prime investment opportunity! "Drastically reduce asking price" 1 acre vacant lot comes with county approval for 10 modern townhomesa rare find in todays market. Imagine building a stylish community with spacious layouts, sleek design, and strong buyer appeal in a highly desirable location. With approvals already secured, you can fast track development and capitalize on rising demand for new housing. Whether youre a seasoned builder or savvy investor, this property offers incredible potential, strong returns, and the chance to bring a vision to life. Dont waitopportunities like this dont last. MOTIVATED SELLER!!!
Payment Calculator
- Principal & Interest -
- Property Tax $
- Home Insurance $
- HOA Fees $
- Monthly -
Features
Building and Construction
- Covered Spaces: 0.00
- Living Area: 0.00
Property Information
- Property Condition: Pre-Construction
Garage and Parking
- Garage Spaces: 0.00
- Open Parking Spaces: 0.00
- Parking Features: Parking Spaces - 19 to 30
Eco-Communities
- Water Source: None
Utilities
- Carport Spaces: 0.00
- Cooling: Central Air
- Road Frontage Type: City Street
- Sewer: None
- Utilities: Other
Finance and Tax Information
- Home Owners Association Fee: 0.00
- Insurance Expense: 0.00
- Net Operating Income: 0.00
- Other Expense: 0.00
- Tax Year: 2024
Other Features
- Country: US
- Legal Description: SEC 05 TWP 16 RGE 23 PLAT BOOK J PAGE 094 SILVER SPRINGS SHORES UNIT 7 BLK 101 LOT 15
- Area Major: 34472 - Ocala
- Parcel Number: 9007-0101-15
- Possession: Close Of Escrow
- Zoning Code: R3
Nearby Subdivisions
- Marie McLaughlin
- CENTURY 21 Alliance Realty
- Your Real Estate Resource
- Mobile: 727.858.7569
- marie@c21connects.com








